Casa indipendente in vendita

Ronsecco, Via Giulio Pasta
€ 130.000
8 locali 8 locali
200 Mq 200 Mq
2 bagni 2 bagni

Casa indipendente in vendita

Ronsecco, Via Giulio Pasta

Descrizione annuncio

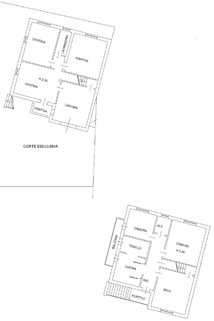
Casa indipendente con ampio cortile privato, ideale per chi ricerca tranquillità e ampi spazi esterni.

L’abitazione principale si sviluppa al piano primo ed è composta da un angolo cottura con sala da pranzo, un soggiorno, una camera da letto matrimoniale, una camera singola e un bagno. Al piano terra l’intera metratura dell’immobile è adibita a cantina, offrendo ampi spazi utilizzabili come locali accessori.

All’interno della proprietà è presente anche una seconda abitazione, attualmente allo stato grezzo, composta al piano terra da cucina e soggiorno, mentre al piano primo si trovano due camere da letto e il bagno, con la possibilità di completarla e personalizzarla secondo le proprie esigenze.

Il cortile privato completa la proprietà e ospita un’ampia tettoia aperta, due locali deposito e un comodo box auto doppio.

Mostra tutto

Nelle vicinanze

Trasporto pubblico Trasporto pubblico
Trasporto pubblico
310 m
Scuole Scuole
Scuole
390 m
Farmacia Farmacia
Farmacia San Lorenzo
410 m
Supermercati Supermercati
Supermercati
230 m
Negozi Negozi
La Bottega
350 m
Ristoranti Ristoranti
Ristorante Edelweiss
610 m
Mostra tutto

Caratteristiche

Rif.:
61191891
Piano:
Su più livelli di 2
Totale piani:
2
Box:
3
Balconi:
1
Camere da letto:
4
Mostra tutto
Prezzo Prezzo
€ 130.000
Rata mutuo Rata mutuo
€ 617 / mese
Spese annue Spese annue
€ 0
Proponi il tuo prezzoProponi il tuo prezzo

Classe Energetica

F
F
F
F
F
F
F
F
F
EP globale non rinnovabile:
328.88 kW h/m² anno
EP globale rinnovabile:
0.00 kW h/m² anno
EP invernale del fabbricato:
EP estiva del fabbricato:
Anno di costruzione:
1967
Riscaldamento:
Autonomo
Tipo impianto:
A radiatori
Tipo alimentazione:
Metano

Ti interessa visionare l'immobile?

Fissa un appuntamento  Fissa un appuntamento

Richiedi informazioni

Clicca su Leggi per aprire l'informativa
* Questi campi sono obbligatori

Calcola il tuo mutuo

Semplice e senza impegno
Anticipo

( % )
Mutuo

( % )

pochi semplici passi

inserisci i tuoi dati
Questionario completato
Grazie per aver richiesto un appuntamento senza impegno con un nostro Consulente del Credito e Assicurativo.

Hai inserito correttamente tutti i dati necessari e a breve riceverai una e-mail con un link da convalidare per inviare i tuoi dati.
Affiliato
Studio Santhià Uno Sas
Corso Nuova Italia, 147 13048 Santhià (VC)

Il nostro staff


  • Jody Fontana
    Affiliato

  • Riccardo Ronza
    Affiliato

  • Mikael Battel
    Responsabile

  • Simone Luigi Cardillo
    Collaboratore

  • Camilla Gauna
    Coordinatrice

  • Gabriele Lazzaron
    Collaboratore

  • Nicolò Posillipo
    Collaboratore

  • Edoardo Viscito
    Affiliato
Corso Nuova Italia, 147 13048 Santhià (VC)
Zona: Santhià - Tronzano
Mostra su mappa
Orari: dal lunedì al venerdì dalle 09:00 alle 12:30 e dalle 14:30 alle 19:30, il sabato dalle 09:00 alle 12:30 e dalle 14:30 alle 18:00
Affiliato
Studio Santhià Uno Sas
Corso Nuova Italia, 147 13048 Santhià (VC)

2026 Tecnocasa Franchising S.p.A. - P. IVA 08365160152 - Via Monte Bianco 60/A 20089 Rozzano (MI). Ogni agenzia ha un proprio titolare ed è autonoma. Privacy policy | Policy utilizzo | Cookie policy