Casa indipendente in vendita

San Germano Vercellese, Viale augusto franzoi
€ 99.000
16 locali 16 locali
300 Mq 300 Mq
3 bagni 3 bagni

Casa indipendente in vendita

San Germano Vercellese, Viale augusto franzoi

Descrizione annuncio

Nel cuore del comune di San Germano Vercellese, spaziosa casa indipendente, ideale per chi cerca ampi spazi e tranquillità.

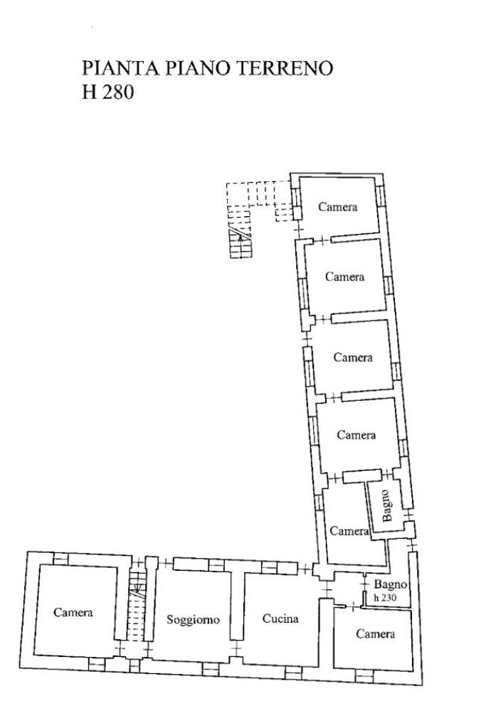
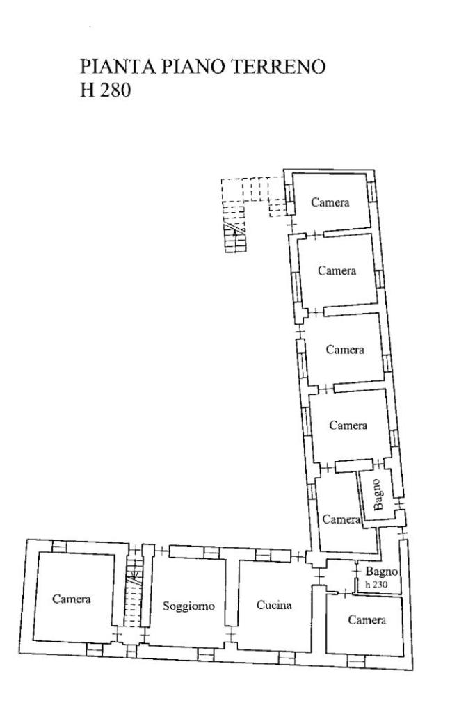
L'immobile, di 300 mq, si sviluppa su due livelli e offre una soluzione bifamiliare semi ristrutturata, perfetta per due nuclei familiari.

La casa, è stata ristrutturata intorno al 2014, dispone di 16 locali, tra cui 6 camere da letto e 8 altre stanze versatili, adatte a diverse esigenze. Sono presenti 3 bagni, un balcone e un terrazzo, che garantiscono comfort e funzionalità.

Il piano primo si presenta già ristrutturato e da subito abile, mentre il piano terra si presenta in uno stile rustico da ristrutturare a proprio piacimento.

Un ampio giardino circonda la proprietà, offrendo uno spazio verde per il relax all'aperto.

La presenza di sei box auto rappresenta un ulteriore vantaggio, ideale per chi possiede più veicoli o necessita di spazio per il deposito.

Compreso nella proprietà si ha anche un terreno di circa 500 metri quadri a pochi passi dall'immobile.

Mostra tutto

Nelle vicinanze

Trasporto pubblico Trasporto pubblico
stazione di San Germano Vercellese
stazione di San Germano Vercellese
590 m
Scuole Scuole
Istituto Comprensivo G.Lignana
100 m
Farmacia Farmacia
Farmacia Porta Dott. Davide
240 m
Negozi Negozi
Biletta Vanna
270 m
Mairone
390 m
Giarletti
400 m
Negozi
520 m
Bar Bar
Bar della Stazione
480 m
Ristoranti Ristoranti
Locanda del Leon d'oro
140 m
Chalet
2,6 Km
L'Armistizio 1848
2,8 Km
Mostra tutto

Caratteristiche

Rif.:
61038166
Piano:
Su più livelli di 2
Totale piani:
2
Box:
6
Balconi:
1
Terrazzi:
1
Mostra tutto
Prezzo Prezzo
€ 99.000
Rata mutuo Rata mutuo
€ 463 / mese
Spese annue Spese annue
€ 0
Proponi il tuo prezzoProponi il tuo prezzo

Classe Energetica

G
G
G
G
G
G
G
G
G
EP globale non rinnovabile:
55.76 kW h/m² anno
EP invernale del fabbricato:
EP estiva del fabbricato:
Anno di costruzione:
1965
Riscaldamento:
Autonomo
Tipo impianto:
A radiatori
Tipo alimentazione:
Metano

Ti interessa visionare l'immobile?

Fissa un appuntamento  Fissa un appuntamento

Richiedi informazioni

Clicca su Leggi per aprire l'informativa
* Questi campi sono obbligatori

Calcola il tuo mutuo

Semplice e senza impegno
Anticipo

( % )
Mutuo

( % )

pochi semplici passi

inserisci i tuoi dati
Questionario completato
Grazie per aver richiesto un appuntamento senza impegno con un nostro Consulente del Credito e Assicurativo.

Hai inserito correttamente tutti i dati necessari e a breve riceverai una e-mail con un link da convalidare per inviare i tuoi dati.
Affiliato
Studio Santhià Uno Sas
Corso Nuova Italia, 147 13048 Santhià (VC)

Il nostro staff


  • Jody Fontana
    Affiliato

  • Riccardo Ronza
    Affiliato

  • Mikael Battel
    Responsabile

  • Simone Luigi Cardillo
    Collaboratore

  • Camilla Gauna
    Coordinatrice

  • Gabriele Lazzaron
    Collaboratore

  • Nicolò Posillipo
    Collaboratore

  • Edoardo Viscito
    Affiliato
Corso Nuova Italia, 147 13048 Santhià (VC)
Zona: Santhià - Tronzano
Mostra su mappa
Orari: dal lunedì al venerdì dalle 09:00 alle 12:30 e dalle 14:30 alle 19:30, il sabato dalle 09:00 alle 12:30 e dalle 14:30 alle 18:00
Affiliato
Studio Santhià Uno Sas
Corso Nuova Italia, 147 13048 Santhià (VC)

2026 Tecnocasa Franchising S.p.A. - P. IVA 08365160152 - Via Monte Bianco 60/A 20089 Rozzano (MI). Ogni agenzia ha un proprio titolare ed è autonoma. Privacy policy | Policy utilizzo | Cookie policy