Casa semindipendente in vendita

San Germano Vercellese, Via J. Suigo di Levante
€ 120.000
12 locali 12 locali
383 Mq 383 Mq
5 bagni 5 bagni

Casa semindipendente in vendita

San Germano Vercellese, Via J. Suigo di Levante

Descrizione annuncio

Nel cuore di San Germano Vercellese, sita in una posizione strategica tra Vercelli e Santhià, spaziosa bifamiliare semindipendente, composta da due appartamenti distinti, ideale per chi è alla ricerca di indipendenza, grandi metrature e possibilità di personalizzazione degli ambienti.

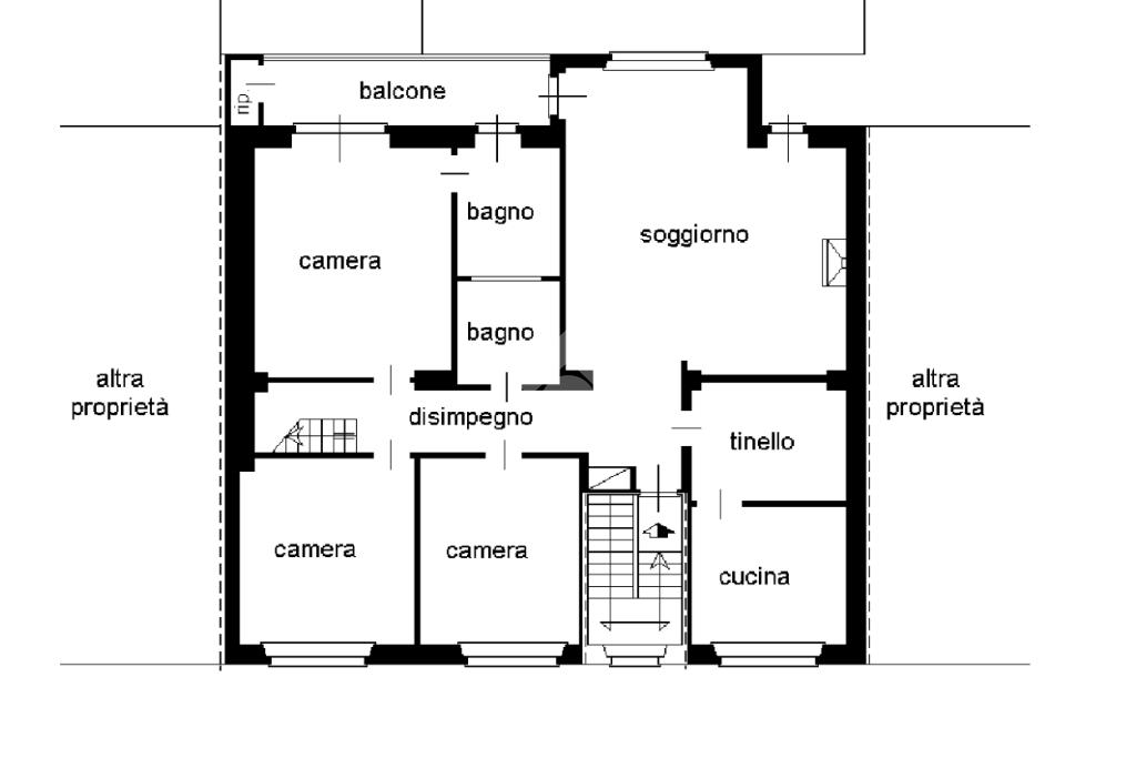
L’appartamento al piano primo si compone di una comoda cucina abitabile, un ampio soggiorno, tre camere da letto, due matrimoniali e una singola, due bagni, uno dotato di doccia e uno dotato di vasca, e un pratico ripostiglio, offrendo spazi funzionali e ben distribuiti.

Al secondo piano, l’appartamento presenta una cucina con affaccio su una pratica zona tinello, un soggiorno ampio e luminoso, tre camere da letto, di cui una con bagno en suite, e un ulteriore bagno a servizio della zona notte.

Una scala interna conduce alla mansarda, dove si trova un grande locale open space, facilmente adattabile sia a zona living che a zona notte, oltre a un terzo bagno che completa il piano.

Completano la proprietà due box auto: uno di grandi dimensioni, in grado di ospitare fino a quattro veicoli, e un secondo di dimensioni più contenute, perfetto come autorimessa o locale di servizio.

Questa soluzione abitativa rappresenta la scelta ideale per due nuclei familiari, o per famiglie numerose, la posizione centrale e ben collegata rende l'immobile particolarmente comodo per raggiungere tutti i principali servizi, data la vicinanza sia a Vercelli che a Santhià.

Mostra tutto

Nelle vicinanze

Trasporto pubblico Trasporto pubblico
stazione di San Germano Vercellese
stazione di San Germano Vercellese
440 m
Scuole Scuole
Istituto Comprensivo G.Lignana
50 m
Farmacia Farmacia
Farmacia Porta Dott. Davide
170 m
Negozi Negozi
Biletta Vanna
170 m
Mairone
290 m
Giarletti
300 m
Negozi
420 m
Bar Bar
Bar della Stazione
340 m
Ristoranti Ristoranti
Locanda del Leon d'oro
80 m
Chalet
2,8 Km
L'Armistizio 1848
2,9 Km
Mostra tutto

Caratteristiche

Rif.:
61113206
Piano:
Su più livelli di 3
Totale piani:
3
Box:
2
Balconi:
3
Camere da letto:
6
Mostra tutto
Prezzo Prezzo
€ 120.000
Rata mutuo Rata mutuo
€ 561 / mese
Spese annue Spese annue
€ 0
Proponi il tuo prezzoProponi il tuo prezzo

Classe Energetica

G
G
G
G
G
G
G
G
G
EP globale non rinnovabile:
264.71 kW h/m² anno
EP globale rinnovabile:
0.56 kW h/m² anno
EP invernale del fabbricato:
EP estiva del fabbricato:
Anno di costruzione:
1975
Riscaldamento:
Autonomo
Tipo impianto:
A radiatori
Tipo alimentazione:
Metano

Ti interessa visionare l'immobile?

Fissa un appuntamento  Fissa un appuntamento

Richiedi informazioni

Clicca su Leggi per aprire l'informativa
* Questi campi sono obbligatori

Calcola il tuo mutuo

Semplice e senza impegno
Anticipo

( % )
Mutuo

( % )

pochi semplici passi

inserisci i tuoi dati
Questionario completato
Grazie per aver richiesto un appuntamento senza impegno con un nostro Consulente del Credito e Assicurativo.

Hai inserito correttamente tutti i dati necessari e a breve riceverai una e-mail con un link da convalidare per inviare i tuoi dati.
Affiliato
Studio Santhià Uno Sas
Corso Nuova Italia, 147 13048 Santhià (VC)

Il nostro staff


  • Jody Fontana
    Affiliato

  • Riccardo Ronza
    Affiliato

  • Mikael Battel
    Responsabile

  • Simone Luigi Cardillo
    Collaboratore

  • Camilla Gauna
    Coordinatrice

  • Gabriele Lazzaron
    Collaboratore

  • Nicolò Posillipo
    Collaboratore

  • Edoardo Viscito
    Affiliato
Corso Nuova Italia, 147 13048 Santhià (VC)
Zona: Santhià - Tronzano
Mostra su mappa
Orari: dal lunedì al venerdì dalle 09:00 alle 12:30 e dalle 14:30 alle 19:30, il sabato dalle 09:00 alle 12:30 e dalle 14:30 alle 18:00
Affiliato
Studio Santhià Uno Sas
Corso Nuova Italia, 147 13048 Santhià (VC)

2026 Tecnocasa Franchising S.p.A. - P. IVA 08365160152 - Via Monte Bianco 60/A 20089 Rozzano (MI). Ogni agenzia ha un proprio titolare ed è autonoma. Privacy policy | Policy utilizzo | Cookie policy